

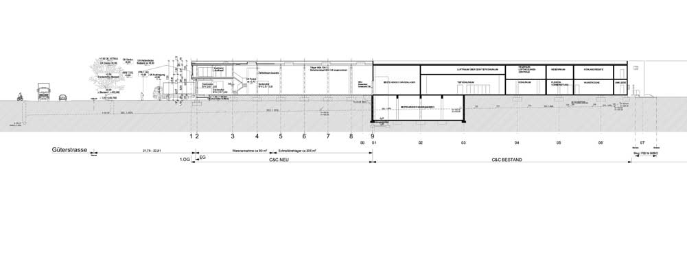
C&C Großmarkt, Singen
Erweiterung / Neuausrichtung der Lagerlogistik auf der Westseite. Neustrukturierung der Kühl- und Tiefkühl-Zustellbereiche im Bestand. Einbindung einer multifunktionalen Kälte-/Wärmeverbundanlage zur energetischen Optimierung.
Projektteam
Ing. Buero Baur, Singen-Hausen
Geotechnik: Kempfert + Partner, Konstanz
EL Fachplanung: Greiner Engineering, Konstanz, Reinhard Weber
Brandschutz: Halfkann + Kirchner, Erkelenz
