

Wirsch / Hilzingen Ortl Riedheim
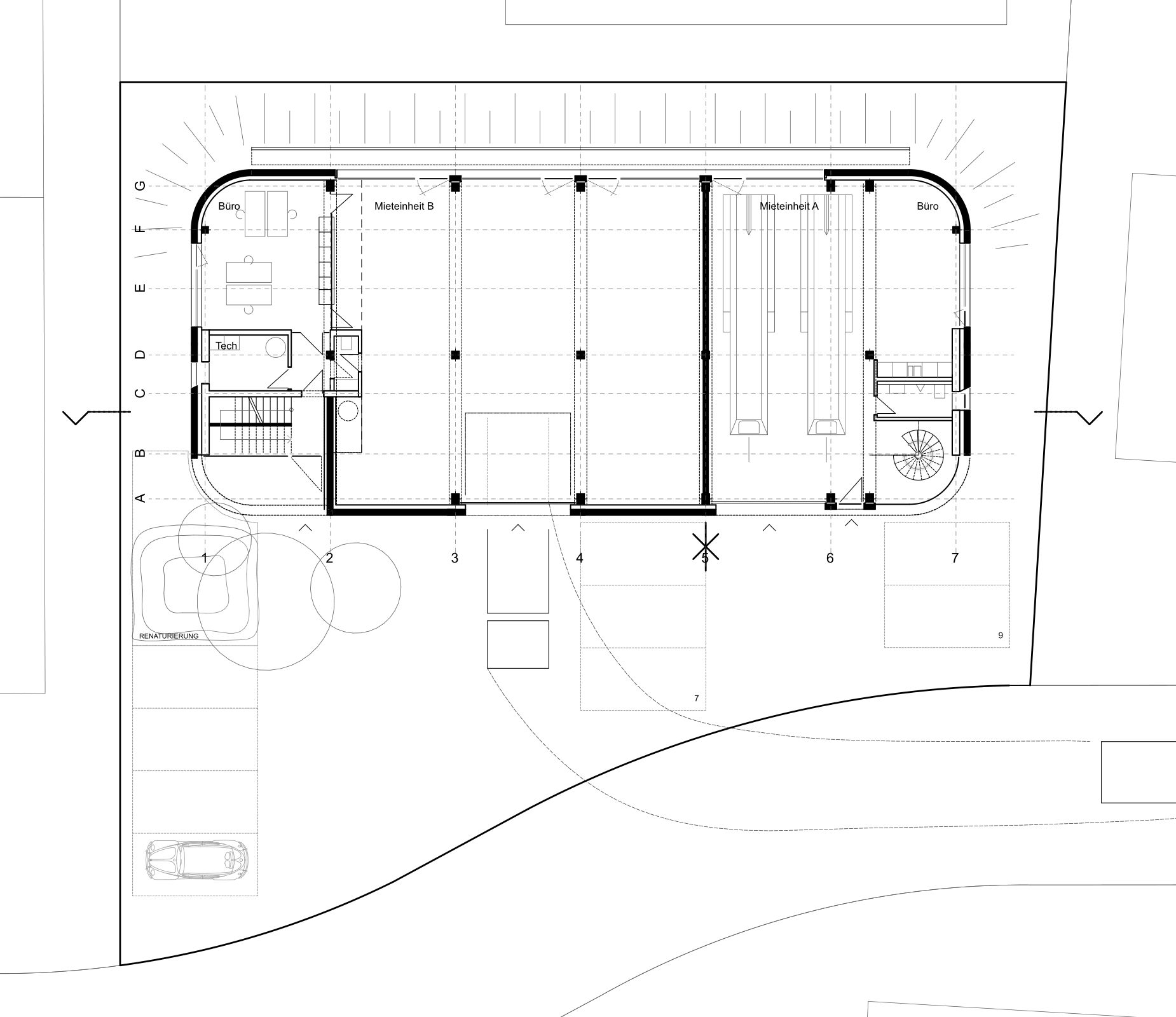
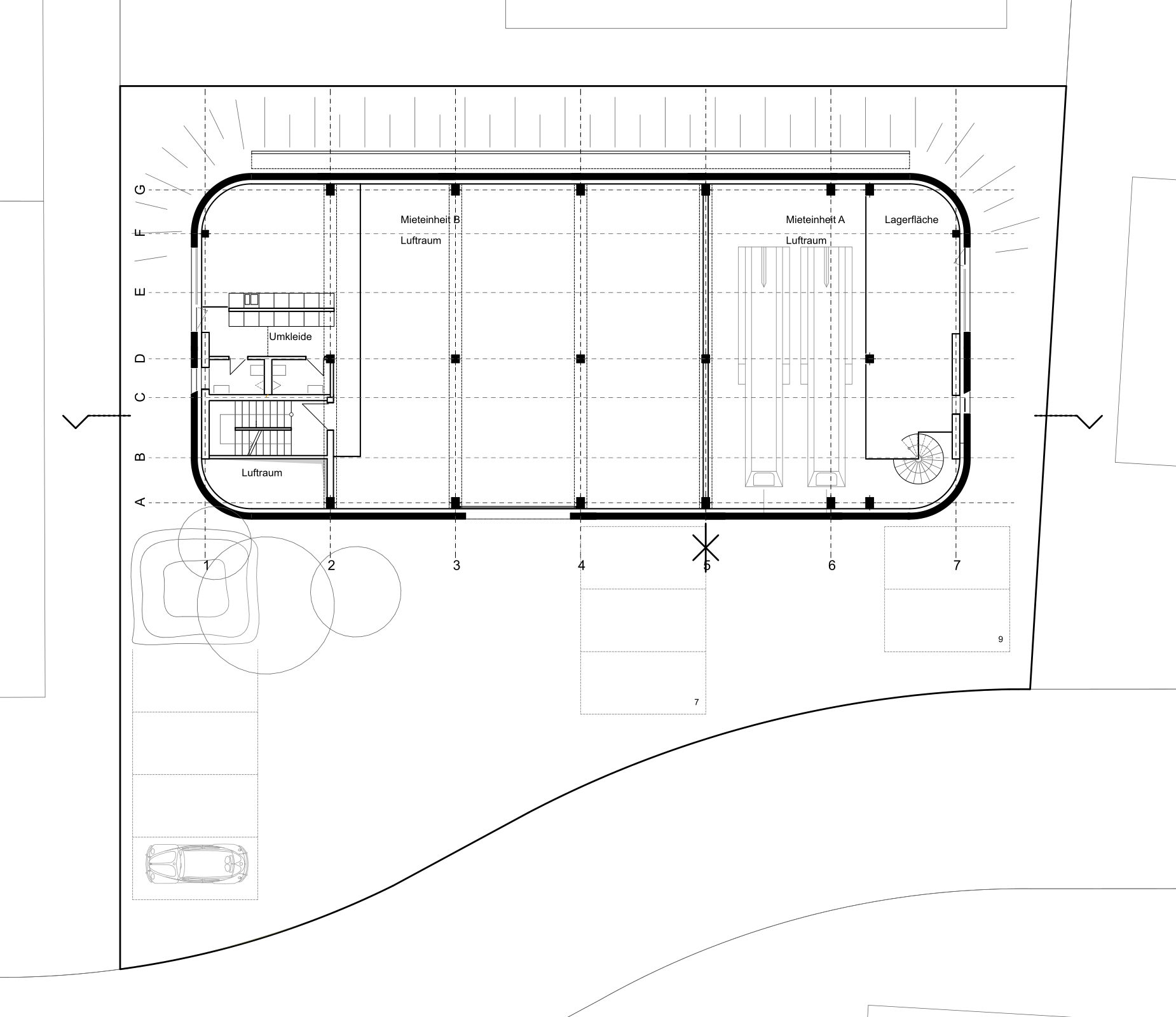
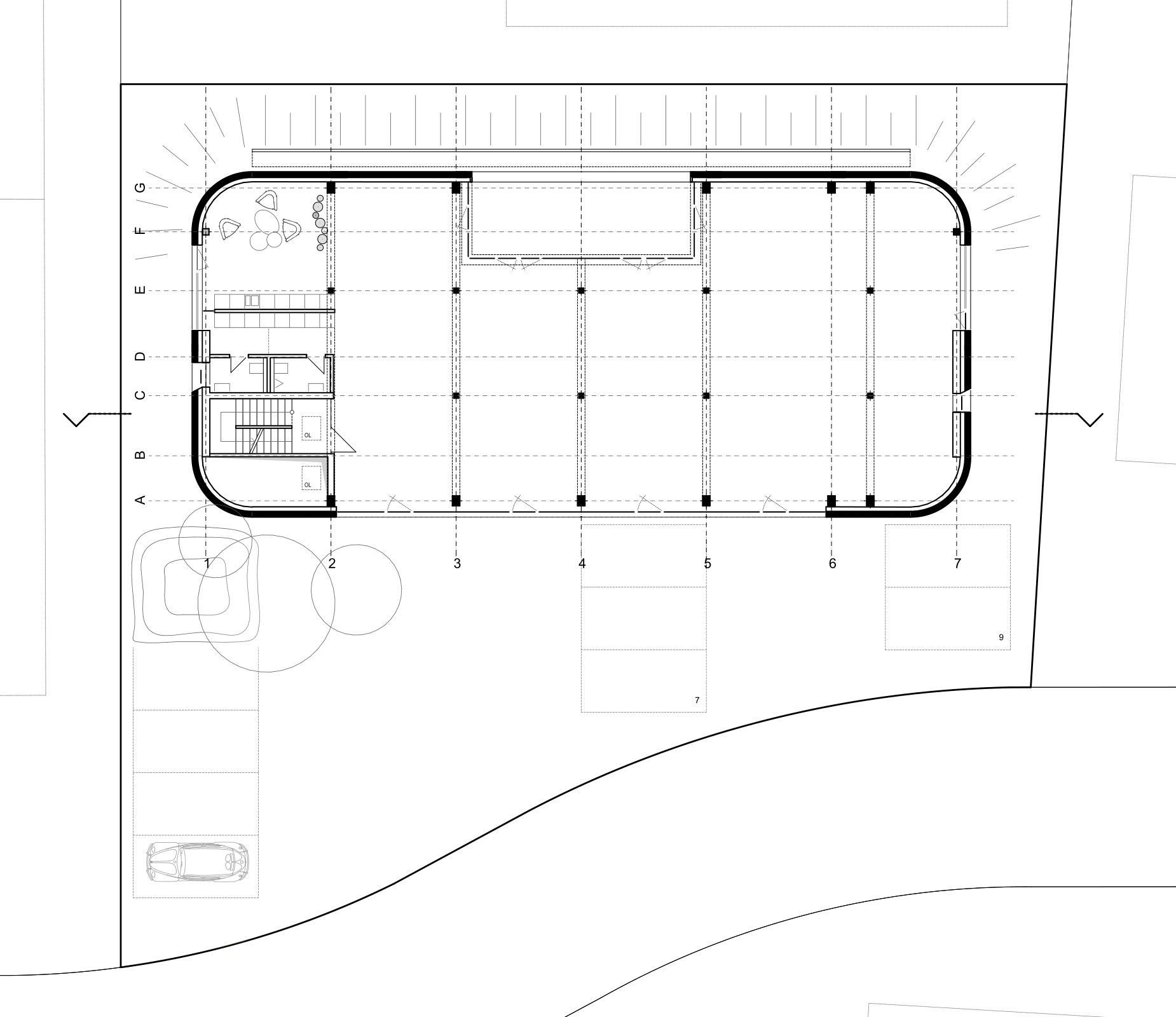
Neubau einer Gewerbehalle mit nutzungsabgestimmten Büro-, Lager- & Nebenräumen
Projektteam
Ing. Büro Baur, Singen-Hausen
Geotechnik: Dr Björn Bahrig
Sachverständiger für Boden & Gewässerschutz, Allensbach
EL Fachplanung N.N.
Brandschutz: Halfkann + Kirchner, Erkelenz
Visualisierungen:
©Architekturbüro F X Wuhrer, Singen





